旅館業許可(ホテル・旅館・簡易宿所)の図面の作成について
ー 旅館業申請に必要不可欠な図面すべてを作成しますー
旅館業許可申請の成否は「図面」で決まります。
旅館業の許可申請において、最も高いハードルとなるのが正確な図面の作成です。なぜ、これほどまでに図面が重要視されるのか。そこには3つの大きな理由があります。
1. 構造設備基準の「証明書」
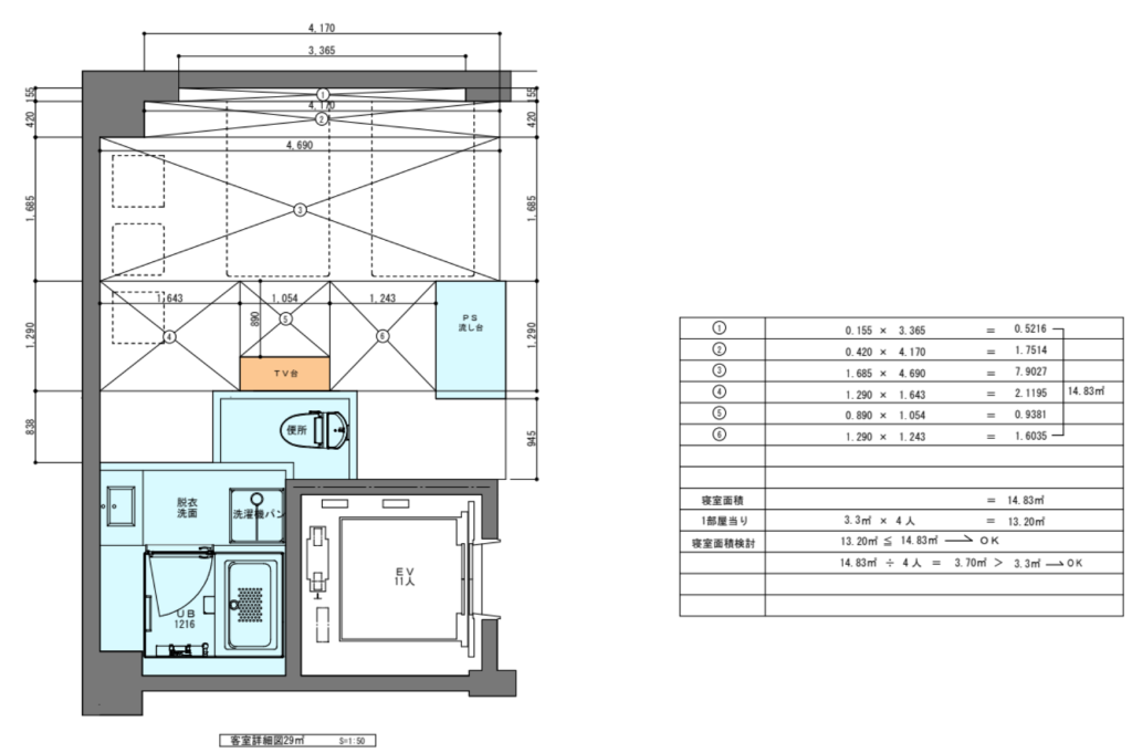
旅館業法には、客室の床面積、窓の大きさ(採光)、換気設備、トイレの数など、非常に細かい構造設備基準が定められています。
- 面積の計算: 壁芯面積ではなく、有効面積(内法)で算出する必要があります。
- 設備の位置: 消防法や建築基準法との整合性も図面上でチェックされます。
これらが基準を補完できていなければ、許可が下りない事態に陥ります。
2. 保健所・消防署との「共通言語」であるため
旅館業の申請手続きでは、保健所だけでなく、もちろん消防署とも協議を重ねます。
- 保健所: 衛生面や設備などの営業許可の諸条件の確保をチェック
- 消防署: 避難経路、誘導灯、自動火災報知設備などの配置をチェック
プロが作成した正確な図面(CAD図面)があることで、行政担当者との協議がスムーズに進み、補正(やり直し)の回数を劇的に減らすことができます。※旅館業申請で作成した図面を消防署との競技用のベース図面としてもご提供いたします。
3. 無駄な改修コストを抑えるため
図面が不正確なままリノベーション工事を進めてしまうと、完成後に「基準を満たしていない」ことが発覚し、追加の工事費用が発生するリスクがあります。 「設計図」と「申請用図面」は別物です。行政書士が法規に則った図面を作成・チェックすることで、無駄な出費を防ぐことができます。
※当サイトは行政書士事務所の経営者が運営しており、行政書士の資格に基づき、作成いたします。
旅館業許可申請において必須となる「図面」
旅館業(簡易宿所・旅館・ホテル等)の許可申請では、建築基準法・消防法・旅館業法に基づき、施設の安全性・衛生・面積要件を確認するための図面が必要です。
KYD&Pは、旅館業許可の実務で最重要となる、実際の建物の現況に即した図面を作成いたします。
こんなお悩み、ありませんか?
- 旅館業申請をしたいが、どの図面をどこまで作ればよいか分からない。
- 図面はあるが、「旅館業申請に必要な情報が足りない」と言われた。
- 建築当時から、間取りの変更や、増設を行っており、図面が現況と合っていない。
- 消防から「設備・区画・動線が図面で確認できない」と言われた。
- 役所の窓口で「この内容は図面で示してください」と言われて止まった。
旅館業の申請に必要な図面とは?
自治体ごとに細部は異なるものの、旅館業の申請に一般的に必要となる図面は、次のとおりです。
① 平面図(各階)〈必須〉
・各階の間取り、客室の面積(内法/㎡)が分かる図面
・室名(寝室、台所、風呂、トイレ、廊下 など)を明記
・換気・採光に関する窓位置を記載

② 立面図(外観の南北東西)
・建物の外観を4方向から示した図面
建築計画概要書の内容と整合性が必要で、建物用途・構造の確認に使われます。
③ 断面図(必要に応じて)
・建物の高さ・階高・天井高さ・床の構造が分かる
換気量・採光量の判断に使われることもあります。
④ 配置図(敷地内の建物の位置)
道路、隣地境界線との距離、駐車場や出入口の位置、排水設備の位置を確認します。消防活動空地などの確認に使う自治体もあります。
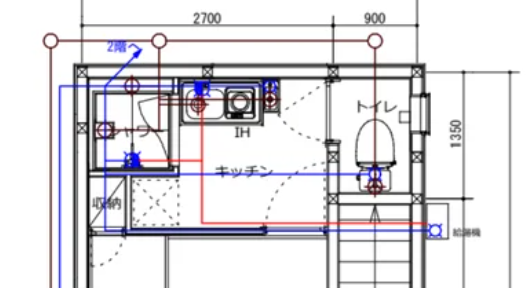
⑤ 給排水設備図
キッチン・洗面・浴室・トイレなどの給水・排水経路を示す図面で、衛生設備の状況把握します。

⑥ 消防用設備等の平面図(消防署提出用)
・火災報知器(自火報・特定小規模自火報)の位置
・誘導灯の位置
・消火器の位置
・避難経路・避難口
消防の使用開始届を提出すると、消防はこの図面をもとに立入検査を行います。
⑦ 避難経路図(フロア案内図)
・宿泊者に掲示するもの
・室内に貼る用の簡易図
・安全確保のための必須書類
⑧ 換気・採光の算定図
旅館業法の採光・換気基準を満たすための窓の大きさ、居室ごとの面積と窓の面積の比率を示します。
⑨ 照明設備図や照明計画
照明設備図は、建物の中の照明設備の位置を示す図面です。照明器具(天井照明、ダウンライト、ブラケットライト(壁付け)、間接照明、非常灯(避難用)を図記号で表記します。

⑩ ガス配管図
ガス配管図は、建物の中で ガスがどこを通って、どこに届いているのか を示した図面です。キッチンなどでガスを使用する場合に作成します。
KYDPのサービス内容(図面作成×申請支援)
必要に応じて、以下を一括で支援します。
1.図面作成(保健所・消防署提出用)
- 平面図の申請仕様への整備(客室面積・有効面積・各設備図)
- 避難経路・動線の明示
- 必要設備の記載内容整理(デザイン・レイアウトを反映)
- 面積・室数・定員等の整合(計算根拠が一致する状態へ)
※現地に赴き、実測の上、作図を行います。
2.旅館業許可申請(簡易宿所・旅館・ホテル)
- 事前相談/行政協議の段取り
- 申請書類一式の作成・提出
- 追加補正・指摘対応(図面差替え含む)
- 開業までの実務の交通整理
ご依頼の流れ
一戸建ての住宅から、アパート、マンションや事務所ビルなど、どのような建物でも対応可能です。まずは、お気軽にお問い合わせください。
- ヒアリング(15〜30分):物件所在地/用途/現況/スケジュール確認
- 資料確認:現況図・竣工図・写真・改修計画の有無
- 必要な図面を作成:現況に即した正確な平面図・立面図・設備図を作成します。
- 行政・消防協議 から許認可申請
- 許可取得・開業へ:追加対応が必要な場合も伴走
よくあるご質問(FAQ)
Q. 図面が手元にありません。依頼できますか?
A.可能です。現況資料の有無により進め方が変わるため、まずは状況を確認します(写真・現地情報・既存図面の有無など)。必要な場合は現地調査・実測を行い、正確な図面を作成します。
Q. すでに設計士がいますが、行政書士に図面を頼む意味は?
A. 設計図と旅館業申請図は目的が違います。KYDPは、過去の豊富な旅館業申請の経験を活かし、保健所や消防で審査が止まるポイントを踏まえ、申請が通る図面を作成します。
Q. どの段階で相談するのがベストですか?
A.改修工事などを行う場合は、「工事計画が固まる前」です。工事計画によっては、旅館業の構造設備基準を満たすことができない場合があり、その際は工事計画の見直しが必要となります。もちろん、工事中・直前でも対応可能です。
まずは、お気軽にお問合わせください
お問い合わせは下記入力フォームから送信、又は直接メール・お電話まで。
※お問い合わせフォーム
お問合せの方は、こちらの管理者アドレスまでメールでご連絡ください